跳到主要內容區
您的瀏覽器不支援JavaScript功能,若網頁功能無法正常使用時,請開啟瀏覽器JavaScript狀態
:::
新北市萬里區大坪國民小學
:::
搜尋
細說大坪
細說大坪
大坪簡介
大坪歷史
大坪地圖
大坪交通
大坪臉書
行政團隊
校長室
教務處
總務處
學輔處
幼兒園
人事室
會計室
大坪分機
百年大坪
成果專區
成果專區
雙語教學專區
家庭教育成果
113學年度家庭教育成果
112學年度家庭教育成果
111學年度家庭教育成果
110學年度家庭教育成果
閱讀教育專區
食農教育專區
教學卓越專區
GRS推廣專區
給親師生
給親師生
教育部校園食材登錄平臺
大坪圖書館
校園霸凌申訴信箱dpps24929461@dpps.ntpc.edu.tw
學生申訴電話(學輔處):24929461#31
性平事件申訴管道
:::
首頁
最新消息
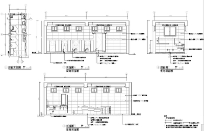
性別友善廁所規劃設計示意圖
規劃設計示意圖
規劃設計示意圖
規劃設計示意圖
規劃設計示意圖
瀏覽數:
登入成功
Close (Esc)
Share
Toggle fullscreen
Zoom in/out
Previous (arrow left)
Next (arrow right)